SkrijPokaži

Salon iR Slovenija

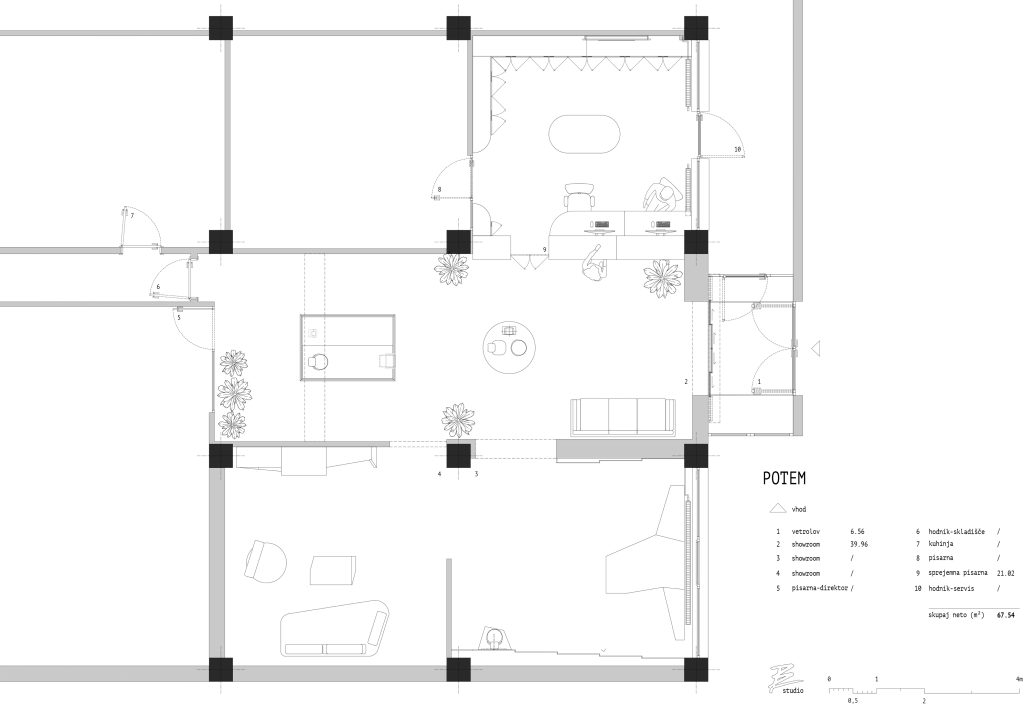
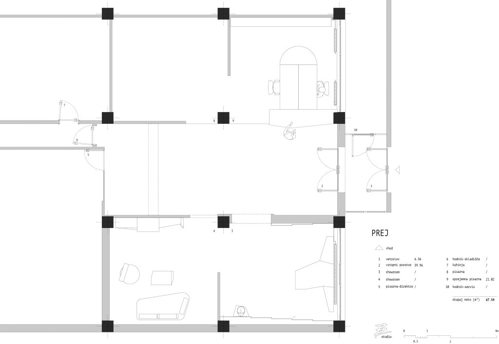
Za podjetje TILT d.o.o. sem pripravil osvežitev salona v Domžalah. Ena izmed nalog je bila rešitev komunikacije med servisom in salonom, ki je prvotno potekala mimo glavnega vhoda. S sprejemnim pultom sem omejil prostor med prodajalcem in kupcem, na podestu, kjer je pult pa sem na eni strani predvidel nova vrata v servis in skladišče na drugi strani pa vrata za vhod v pisarno. Na ta način sem jasno opredelil gibanje strank in zaposlenih.

  • Naročnik: TILT d.o.o.
  • Lokacija: Domžale
  • Leto: 2019
  • Avtor: Rok Božič
  • Avtor fotografij: RB studio
SL