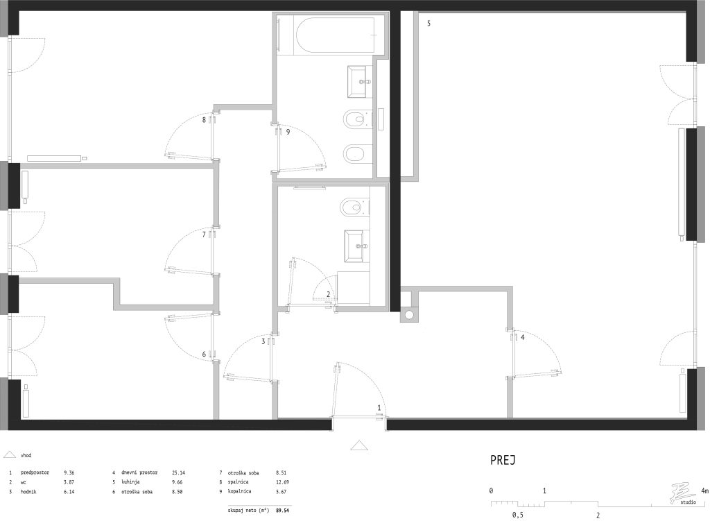
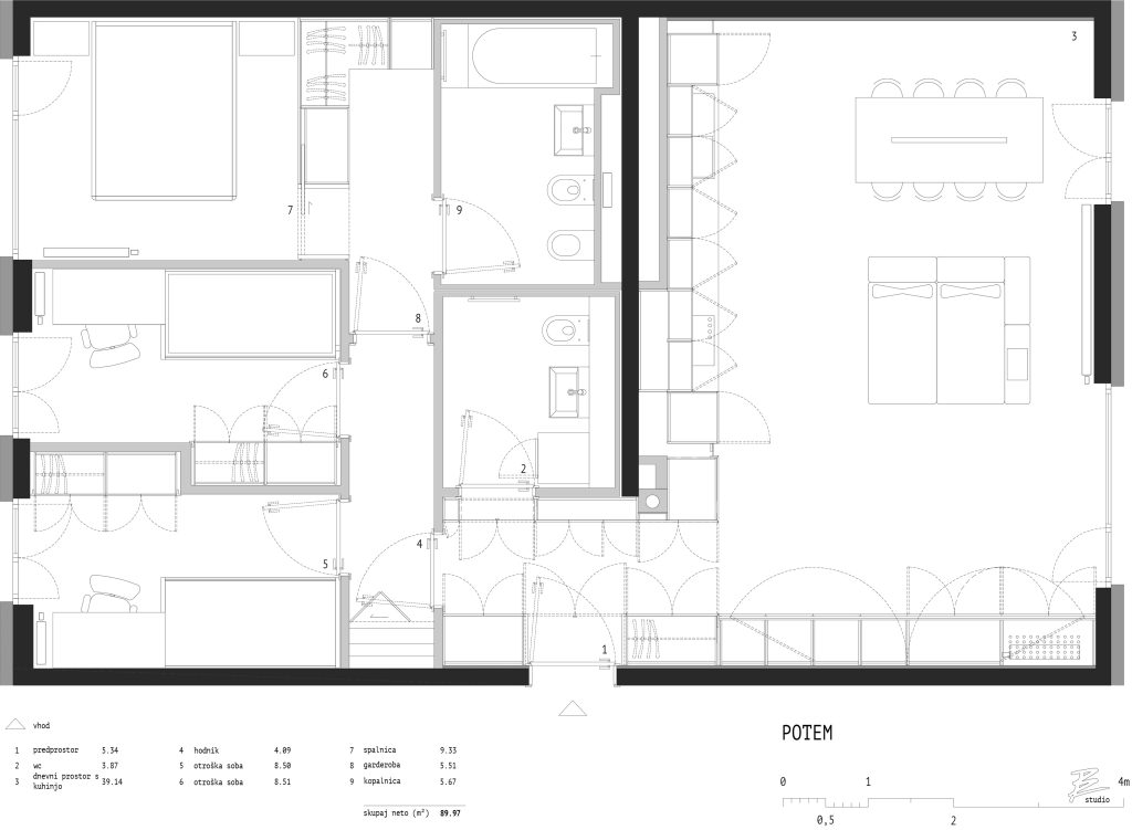
[vc_row][vc_column][bauhaus_project_detail_content t=”Interier ZG” hide_info=”Skrij” show_info=”Pokaži” t_social=”Deli:” items=”%5B%7B%22left_text%22%3A%22Naro%C4%8Dnik%3A%22%2C%22right_text%22%3A%22zasebni%22%7D%2C%7B%22left_text%22%3A%22Lokacija%3A%22%2C%22right_text%22%3A%22Ljubljana%22%7D%2C%7B%22left_text%22%3A%22Leto%3A%22%2C%22right_text%22%3A%222016%22%7D%2C%7B%22left_text%22%3A%22Avtor%3A%22%2C%22right_text%22%3A%22Rok%20Bo%C5%BEi%C4%8D%22%7D%2C%7B%22left_text%22%3A%22Avtor%20fotografij%3A%22%2C%22right_text%22%3A%22RB%20studio%22%7D%5D” items2=”%5B%7B%22url%22%3A%22%23%22%2C%22icon%22%3A%22%20icon-medium%20icon-apartment%22%7D%5D” css=”.vc_custom_1694522539436{margin-bottom: 10px !important;background: #ffffff url(https://www.rbstudio.si/wp-content/uploads/2023/01/dnevna_1.jpg?id=1406) !important;background-position: center !important;background-repeat: no-repeat !important;background-size: cover !important;}”]Interier ZG  se nahaja v novem stanovanjskem naselju v Ljubljani. Izhodišče za oblikovanje je bilo prazno stanovanje. Kljub temu, da je bilo stanovanje ob začetku projekta novo, je bilo potrebnih nekaj prostorskih sprememb. Optimizacija spalnice in gaderobe ter rušitev pregradne stene iz predprostora v bivalni prostor je bil logičen poseg.[/bauhaus_project_detail_content][/vc_column][/vc_row][vc_row][vc_column][vc_column_text]

[/vc_column_text][/vc_column][/vc_row]

SL