SkrijPokaži

Interier ŠD

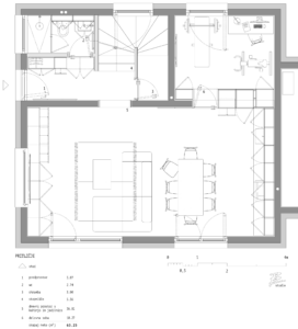
Štiričlanska družina se je bila zaradi prostorske stiske primorana seliti iz stanovanja v Ljubljani. Odločili so se, da bodo živeli nekoliko stran od mestnega vrveža. Medvode so bile idealna rešitev. Del dvojčka v novozgrajenem naselju v bližini osnovne šole je postal njihov novi dom. Zasnova interierja je umirjena, preprosta in funkcionalna. Želja naročnikov je bil dodatni večnamenski prostor v pritličju. Niz oblog z vrati in visokimi kuhinjskimi elementi v enakem ritmu skoraj neopazno loči kuhinjski del s pomožnim prostorom. Ideja o ločitvi prostora s pohištvenimi elementi je bila družinici takoj všeč – zaupanje je bilo s tem vzpostavljeno. Preostanek oblikovanja je bil tako zgolj še formalnost.

  • Naročnik: zasebni
  • Lokacija: Medvode
  • Leto: 2022
  • Avtor: Rok Božič
  • Avtor fotografij: RB studio
SL