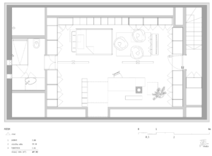
[vc_row][vc_column][bauhaus_project_detail_content t=”Interier MD” hide_info=”Skrij” show_info=”Pokaži” t_social=”Deli:” items=”%5B%7B%22left_text%22%3A%22Naro%C4%8Dnik%3A%22%2C%22right_text%22%3A%22zasebni%22%7D%2C%7B%22left_text%22%3A%22Lokacija%3A%22%2C%22right_text%22%3A%22Smrjene%22%7D%2C%7B%22left_text%22%3A%22Leto%3A%22%2C%22right_text%22%3A%222021%22%7D%2C%7B%22left_text%22%3A%22Avtor%3A%22%2C%22right_text%22%3A%22Rok%20Bo%C5%BEi%C4%8D%22%7D%2C%7B%22left_text%22%3A%22Avtor%20fotografij%3A%22%2C%22right_text%22%3A%22RB%20studio%22%7D%5D” items2=”%5B%7B%22url%22%3A%22%23%22%2C%22icon%22%3A%22%20icon%20ion-social-facebook%22%7D%5D” css=”.vc_custom_1694540481329{margin-bottom: 10px !important;background: #ffffff url(https://www.rbstudio.si/wp-content/uploads/2023/09/postelja-s-pisalno-mizo.jpg?id=1662) !important;background-position: center !important;background-repeat: no-repeat !important;background-size: cover !important;}”]Po priporočilu znancev sem za deklico oblikoval otroško sobo v mansardi enodružinske hiše. Pred posegom je bil prostor neobdelan in imel funkcijo kot shramba vsega mogočega. Po tehtnem premisleku smo v prostor poleg obstoječih treh strešnih oken umestili kombi okno, ki ima funkcijo malega balkona. V osrednjem prostoru se nahajata postelja in pisalna miza. Po obodu si sledijo omare za shranjevanje. Preko omare na koncu sobe vstopiš v malo a priročno kopalnico. Takoj smo si bili enotni, da bomo lesene stebre, ki podpirajo slemensko lego samo grobo ščetkali in jih pustili nepremazane. Kljub dodatni strešni izolaciji sem predvidel talno klima enoto, ki v poletnih mesecih pride še kako prav. Mansardni prostori so vedno nekaj posebnega, romantičnega, zato bi bilo škoda, da bi ostali neizrabljeni.

[/bauhaus_project_detail_content][/vc_column][/vc_row][vc_row][vc_column][vc_column_text]

[/vc_column_text][/vc_column][/vc_row]

SL