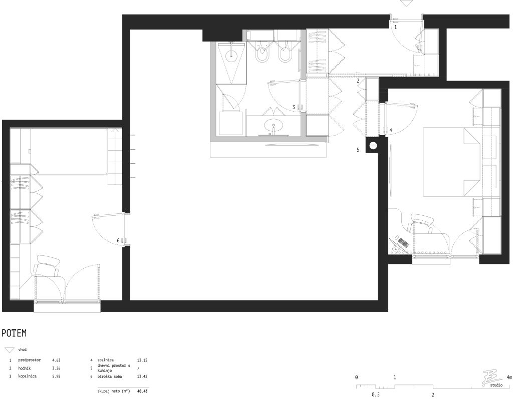
[vc_row][vc_column][bauhaus_project_detail_content t=”Interier G2″ hide_info=”Skrij” show_info=”Pokaži” t_social=”Deli:” items=”%5B%7B%22left_text%22%3A%22Naro%C4%8Dnik%3A%22%2C%22right_text%22%3A%22zasebni%22%7D%2C%7B%22left_text%22%3A%22Lokacija%3A%22%2C%22right_text%22%3A%22Ljubljana%22%7D%2C%7B%22left_text%22%3A%22Leto%3A%22%2C%22right_text%22%3A%222019-2020%22%7D%2C%7B%22left_text%22%3A%22Avtor%3A%22%2C%22right_text%22%3A%22Rok%20Bo%C5%BEi%C4%8D%22%7D%2C%7B%22left_text%22%3A%22Avtor%20fotografij%3A%22%2C%22right_text%22%3A%22RB%20studio%22%7D%5D” items2=”%5B%7B%22url%22%3A%22%23%22%2C%22icon%22%3A%22%20icon-medium%20icon-apartment%22%7D%5D” css=”.vc_custom_1694520919214{margin-bottom: 10px !important;background: #ffffff url(https://www.rbstudio.si/wp-content/uploads/2023/02/kopalnica_1-1.jpg?id=1535) !important;background-position: center !important;background-repeat: no-repeat !important;background-size: cover !important;}”]Interier G2 sem oblikoval 10 let po prvi prenovi stanovanja. Kljub temu, da je bila pri takratnji prenovi prisotna arhitektka se je izkazalo, da prostorska rešitev ni bila optimalna. Primanjkovalo je prostora za shrambo sezonskih oblačil na hodniku pri vhodu v stanovanje, kopalnici je tudi sledila izboljšava. Z upoštevanjem želja naročnikov sem opremil tudi večnamensko/otroško sobico. Prostor za oblačila iz večnamenske sobe sem zagotovil v postelnjem loku v spalnici. Z delno prenovo je bila povrnjena primarna funkcija posameznim prostorom.[/bauhaus_project_detail_content][/vc_column][/vc_row][vc_row][vc_column][vc_column_text]

[/vc_column_text][/vc_column][/vc_row]

SL