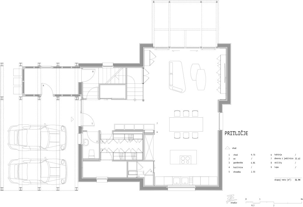
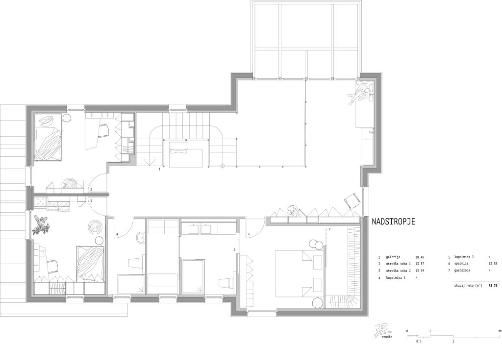
[vc_row][vc_column][bauhaus_project_detail_content t=”Interier G1″ hide_info=”Skrij” show_info=”Pokaži” t_social=”Deli:” items=”%5B%7B%22left_text%22%3A%22Naro%C4%8Dnik%3A%22%2C%22right_text%22%3A%22zasebni%22%7D%2C%7B%22left_text%22%3A%22Lokacija%3A%22%2C%22right_text%22%3A%22Vnanje%20Gorice%22%7D%2C%7B%22left_text%22%3A%22Leto%3A%22%2C%22right_text%22%3A%222018%22%7D%2C%7B%22left_text%22%3A%22Avtor%3A%22%2C%22right_text%22%3A%22Rok%20Bo%C5%BEi%C4%8D%22%7D%5D” items2=”%5B%7B%22url%22%3A%22%23%22%2C%22icon%22%3A%22fa%20fa-facebook-square%22%7D%5D” css=”.vc_custom_1675102741718{margin-bottom: 10px !important;background: #ffffff url(https://www.rbstudio.si/wp-content/uploads/2023/01/DSC2556_Ekoart_Pozarnice_foto_J_Marolt_PREDOGLED.jpg?id=847) !important;background-position: center !important;background-repeat: no-repeat !important;background-size: cover !important;}”]V oblikovanje interierja G1 sem nastopil potem, ko sta naročnika že imela izdelano kuhinjo. Potrebovala sta še ureditev dnevnega prostora, vhodnega dela v hišo, pisalnega prostora s knjižnico v galeriji, garderobo pri vhodu in optimizacijo shrambe. Dve otroški sobi za deklici in manjši poseg v spalnici smo izvedli naknadno. V barvni paleti sem poleg hrastovega furnirja za kontrast uporabil črno barvo. Stenske tapete, ki se proti sončnim žarkom rahlo posvetijo pa poskrbijo za piko na i. Pri otroških sobicah je barvna paleta poleg hrasta razširjena z dvema sivima odtenkoma in rahlo roza tapeto za poudarek.[/bauhaus_project_detail_content][/vc_column][/vc_row][vc_row][vc_column][vc_column_text]

[/vc_column_text][/vc_column][/vc_row]

SL