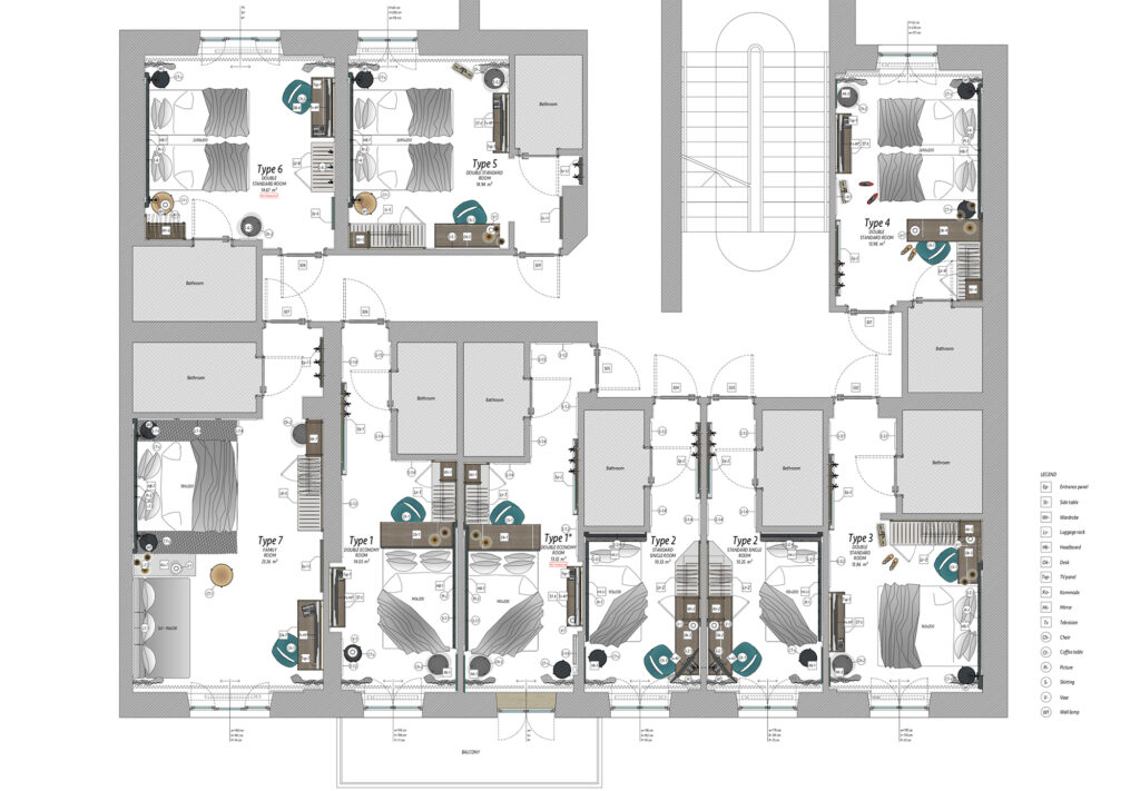
[vc_row][vc_column][bauhaus_project_detail_content t=”Hotel Poseidon” hide_info=”Skrij” show_info=”Pokaži” t_social=”Deli:” items=”%5B%7B%22left_text%22%3A%22Naro%C4%8Dnik%3A%22%2C%22right_text%22%3A%22hotel%20Poseidon%22%7D%2C%7B%22left_text%22%3A%22Lokacija%3A%22%2C%22right_text%22%3A%22Gothenburg%2C%20%C5%A0vedska%22%7D%2C%7B%22left_text%22%3A%22Leto%3A%22%2C%22right_text%22%3A%222018%22%7D%2C%7B%22left_text%22%3A%22Avtor%3A%22%2C%22right_text%22%3A%22Rok%20Bo%C5%BEi%C4%8D%2C%20Niki%20Motoh%22%7D%5D” items2=”%5B%7B%22url%22%3A%22%23%22%2C%22icon%22%3A%22fa%20fa-facebook-square%22%7D%5D” css=”.vc_custom_1674483295755{margin-bottom: 10px !important;background: #ffffff url(https://www.rbstudio.si/wp-content/uploads/2023/01/poseidon_superior_double_room_3.jpg?id=1295) !important;background-position: center !important;background-repeat: no-repeat !important;background-size: cover !important;}”]V sodelovanju s podjetjem Nimo studio d.o.o. smo renovirali dva nadstropja hotela Poseidon na Švedskem. Objekt se nahaja v jedru mesta Gothenburg in izvira iz 18. stol. Projekt je skupno obsegal prenovo 18 sob med njimi 7 različnih tipov. Izziv je bil, da sva v enem dnevu morala narediti izmero vseh sob saj so se kljub isti tipologiji dimenzije prostorov razlikovale. Temu ustrezno je bilo potrebno prilagoditi tudi opremo na novo sprojektirano opremo.[/bauhaus_project_detail_content][/vc_column][/vc_row][vc_row][vc_column][vc_column_text]

[/vc_column_text][/vc_column][/vc_row]

SL